Projekt
| Opis | |
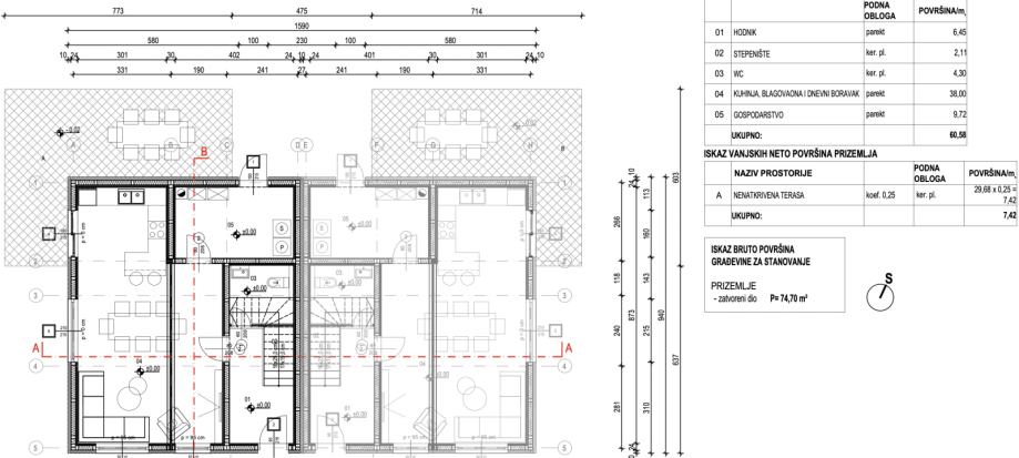
| Svaka kuća sadrži prizemlje i kat. U prizemlju se nalaze: hodnik, WC, kuhinja+blagovaona+dnevni boravak, gospodarstvo i izlaz na nenatkrivenu terasu i vlastito dvorište. Na katu se nalazi: kupaonica, hodnik, spavaća soba i dvije dječje sobe. Svaka kuća sadrži 127m² neto površine. KUĆE SE PRODAJU U FAZI “KLJUČ U RUKE” što uključuje u potpunosti završenu stambenu jedinicu. Mogućnost biranja parketa, keramike, sanitarija… Kuće uključuju: energetski „A“ razred, gradnju prema najvišim standardima kvalitete, podnogrijanje na kondenzacijske plinske bojlere, 5-komornu vanjsku stolariju PVC, termofasadu 15cm, uređeni okoliš kao i parking mjesta. Sve nekretnine su u sustavu PDV-a te kupac ne plaća porez na promet nekretnina u visini od 3%. +mogućnost povrata dijela PDV-a sukladno mjerama države. Useljenje 02/2026 godine. |
|
| Tehničke karakteristike | |
| Lokacija | Selnica, Međimurje |
| Tip kuće | Dvojna (duplex) |
| Broj etaža | Katnica |
| Vrsta kuće (gradnje) | Montažna kuća |
| Broj soba | 4 |
| Stambena površina | 127,00 m² |
| Godina izgradnje | 2026. |
| Namještenost i stanje | Nenamješteno |
| Broj parkirnih mjesta | 2, Vanjsko ne-natkriveno mjesto |
| Balkon/Lođa/Terasa | Terasa |
| Energetski razred | A |
| Grijanje | Etažno plinsko centralno |
| Priključci | Gradski plin, vodovod |
| Kupaonica i WC | 2 |
| Dvorište/vrt | Da |
Preuzmite nacrte, Prizemlje, Kat 1 |
|
![]() |
![]() |
CIJENA (sa PDV-om) |
|
| 241.300 € |
|
| Zakažite posjet | |

